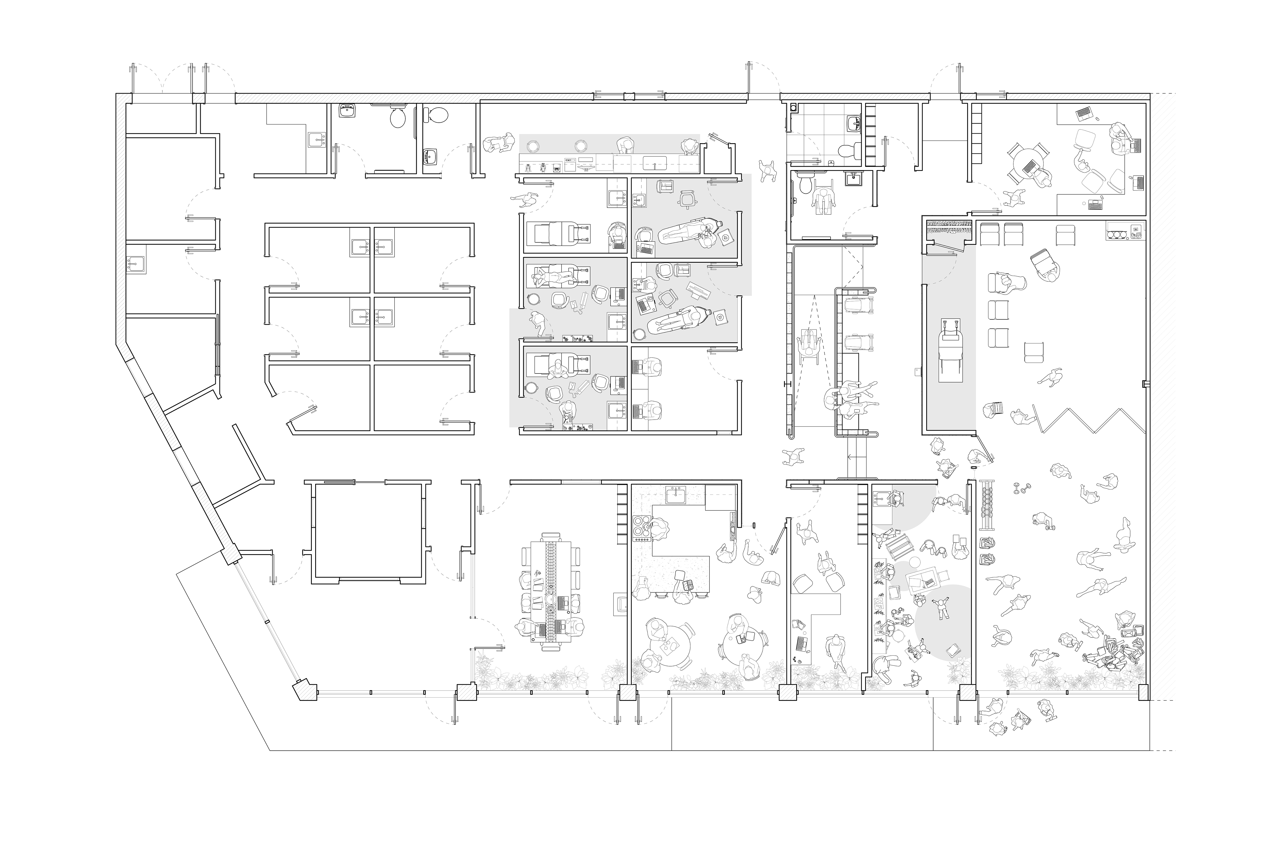
FENIX FAMILY HEALTH
With this expansion, Fenix Family Health, a clinic dedicated to serving primarily Central and South American immigrant families living in Chicago's northern suburbs, is now able to offer prenatal and dental care to its patients in partnership with local providers. The clinic can now also host centering courses as well as health and wellness workshops in its versatile multipurpose spaces.
Type of Project: Interiors, Healthcare
Location: Highwood, IL
Status: Under Construction

Client: Fenix Family Health

Collaborators:
Jack Wakeley, Sigurds Kakulis, Jennie Crandall, Will Lathrop
Contractor:
Landhäus Builders & Developers